Perinnehirsikoti

Perinnehirsikoti- tuotteen perusajatuksena on valmistaa mahdollisimman vähän teollisia tuotteita ja raaka-aineita sisältävä koti. Puu on rakenteissa kaiken perusta ja kokonaisuus koostuu seuraavista tuotteista-> puu, lasi, teräs ja tiili.

Rakennuksen runko tehdään suomalisesta männystä tai kuusesta 150mm hirsipelkasta ja lisäeristys 100mm toteutetaan puukuitueristeellä + 25mm puukuitutuulensuojalla hirsikehikon ulkopuolelle. Rakenne on diffuusioläpäisevä ja erittäin terveellinen. Hirsien välissä eristeenä käytämme pellavaa tai lampaanvillaa. Rakennuksen sisäpinnat voidaan jättää upealle puupinnalle, vaikka piilutettuna. Jokainen hirsi on eri korkuinen ja kartiomainen, joka tuo erityisen tunnelman. Välipohjarakenne voidaan toteuttaa vuoliaisvasoilla, jotka jäävätkin laipioon näkyviin. Lattioissa käytämme perinteistä vahvaa lattialankkua 30x200mm

Ikkunat ja ovet on mahdollista toimittaa myös perinnetuotteina, joissa ominaisuutena mm ulospäin aukeava ulkopoka. Nämä tuotteet valmistaa meidän puuseppä ja raaka-aineena käytämme tiheäsyistä mäntyä, jota saadaan hirsien sahauksen sivutuotteena.

Mikäli rakennus toteutetaan tuulettuvalla alapohjalla, myös alapohjassa käytämme puukuitueristettä. Yläpohja on aina puukuitueristeellä.

Ilmanvaihto on suunniteltu painovoimaiseksi ja mikäli rakennukseen tehdään kosteita tiloja, tehostetaan poisto koneellisesti huippuimurilla.

Perinnehirsikoti voidaan toimittaa myös massiivisella 220mm vahvalla hirsipelkalla. Tällöin emme tarvitse lisäeristettä ulkopuolelle.

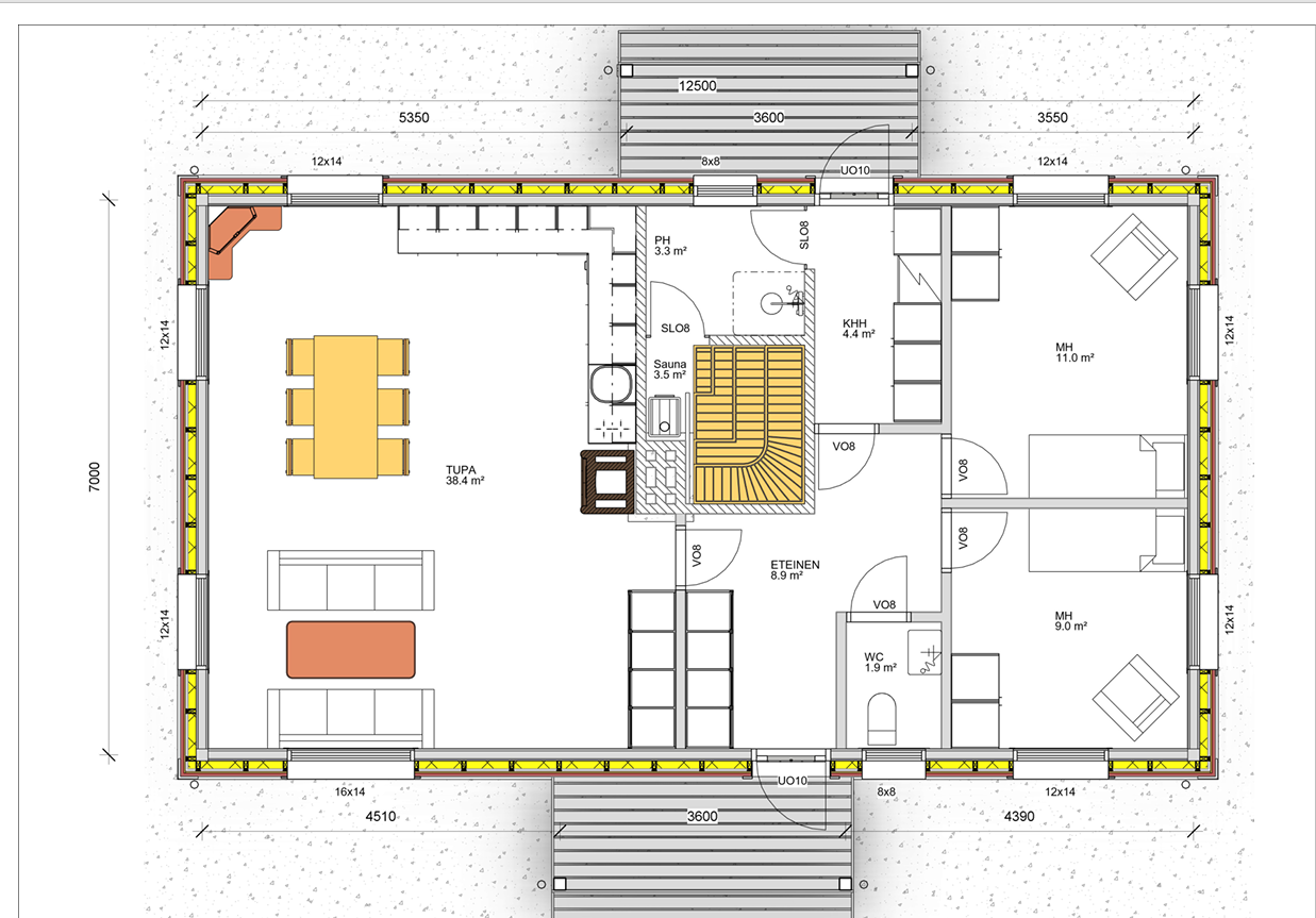
Tämä Perinne85 on ensimmäinen malli ja olemme aloittaneet malliston luomisen. Toki voimme toimittaa kokonaisuuden myös asiakkaan omien suunnitelmien mukaan.

Lisätietoja: Olli Nykänen

0400-792268  |  olli.nykanen@perinnerakenne.fi

Scroll to Top